Des solutions adaptées
à vos besoins
Sécurité incendie et conformité réglementaire au Luxembourg
Concepts de sécurité incendie
Pour la construction de bâtiments neufs ou la mise aux normes d’immeubles existants, nous élaborons le concept global de sécurité incendie, comprenant :
- la vérification du compartimentage,
- l’analyse des chemins de fuite et d’évacuation,
- des conseils d’optimisation technique,
- l’accompagnement lors des réunions avec les administrations compétentes.
Dimensionnement d’installations de désenfumage
Nous réalisons les calculs de désenfumage conformément aux prescriptions de l’ITM, que ce soit pour :
- un système de désenfumage naturel,
- un système de désenfumage mécanique.
Notre équipe peut également vous assister dans la mise en œuvre technique de ces installations.
Simulation d’évacuation des personnes
À l’aide du logiciel Pathfinder, nous effectuons des simulations dynamiques d’évacuation permettant de déterminer entre autres le temps nécessaire à l’évacuation complète d’un bâtiment.
Nos prestations incluent :
- la modélisation des étages et des profils d’occupants selon l’usage du bâtiment,
- l’étude de plusieurs scénarios d’évacuation,
- la présentation des résultats à l’ITM pour valider et optimiser les solutions retenues.
Modélisation incendie
Les simulations incendie que nous réalisons permettent de :
- analyser la faisabilité de solutions techniques alternatives,
- apporter une aide à la décision pour l’optimisation d’un concept de sécurité incendie,
- proposer une alternative aux tests réels lorsqu’ils sont techniquement ou économiquement irréalisables.
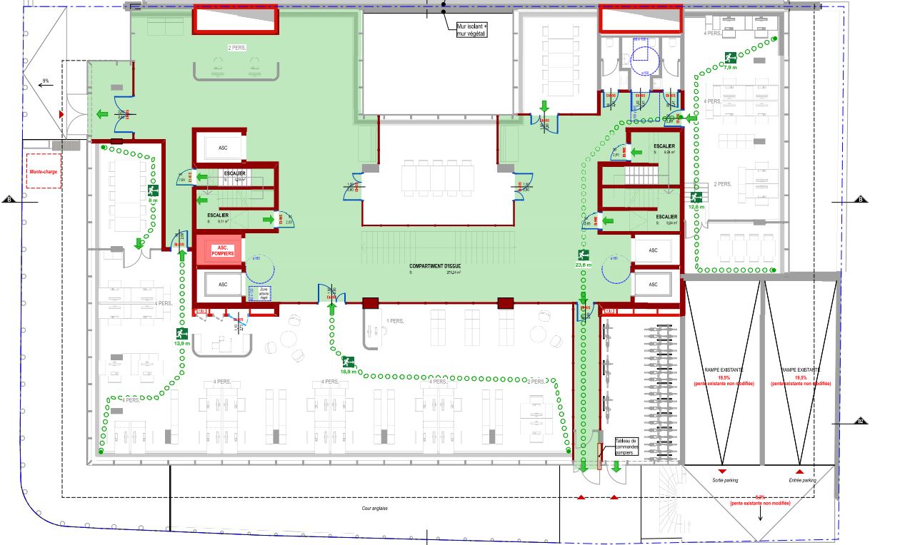
Plan d’évacuation et d’intervention
Nous établissons des plans d’évacuation et d’intervention pour immeubles neufs ou existants, en conformité avec :
- les normes ISO,
- les prescriptions ITM.
Ces plans assurent la lisibilité et l’efficacité des procédures d’urgence pour les occupants et les services de secours.
Plan d’urgence
Pour certains établissements classés (garages, stations-services, industries, etc.), l’ITM peut exiger un plan d’urgence.
Nous accompagnons les exploitants dans la rédaction et la mise en œuvre de plans d’urgence complets, adaptés à leur activité et conformes aux prescriptions réglementaires.
